CAPA.jpg

Aliados 45

HOTEL ALIADOS 45

A intervenção num edifício na Avenida dos Aliados, no Porto, teve como premissa a preservação do património existente. Propõe-se a “limpeza” dos elementos dissonantes acrescentados ao longo do tempo e um aumento de volumetria que respeita a pré-existência e o contexto envolvente.

Do edifício original de 1914 apenas se mantêm a fachada virada para a Avenida dos Aliados. Em meados do séc. XX, a fachada foi espelhada e acrescentou-se um piso novo recuado. O edifício passou a ter uma estrutura de betão. A fachada tardoz, com desenho da década de 50, foi sofrendo alterações e acrescentos, sem valor patrimonial de relevo.

VISTA AEREA.jpg
 

Alçado Avenida dos Aliados - actual

Alçado Avenida dos Aliados - proposta

 

O projecto prevê a manutenção da estrutura do edifício e da fachada principal, demolindo parcialmente a fachada tardoz.

A intervenção exterior - o aumento de um piso e nova volumetria no tardoz - é marcada pela introdução de um novo material, o betão cofrado à vista .

 
 
Edifício original de 1914

Edifício original de 1914

 
Fotomontagem da proposta

Fotomontagem da proposta

 
 
 

Alçado Principal, estado actual

 

Alçado Tardoz, estado actual

 
 
 
 
 

Alçado Tardoz - Proposta

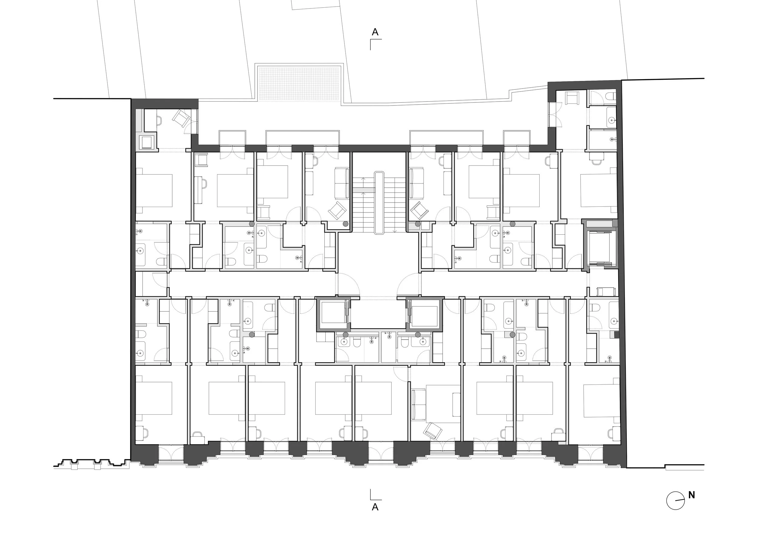
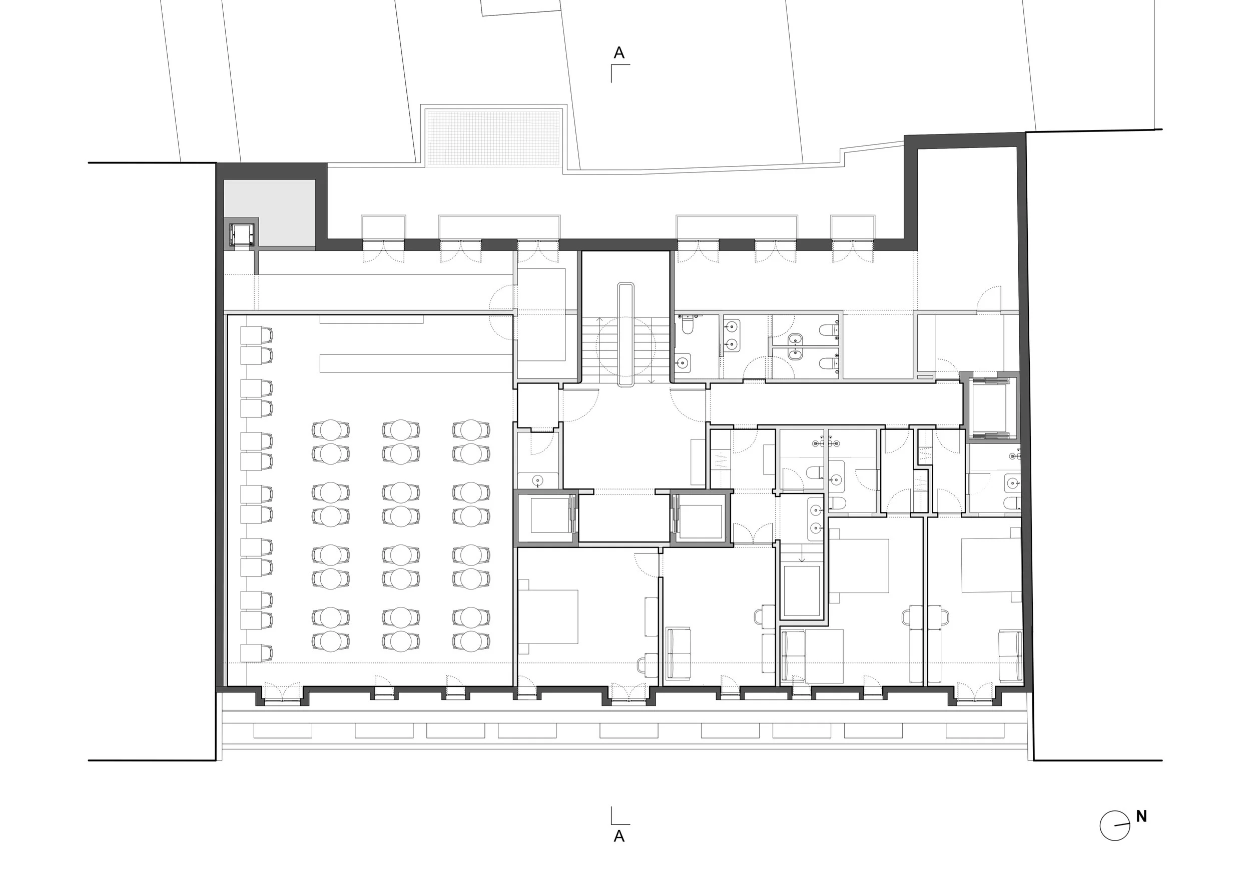
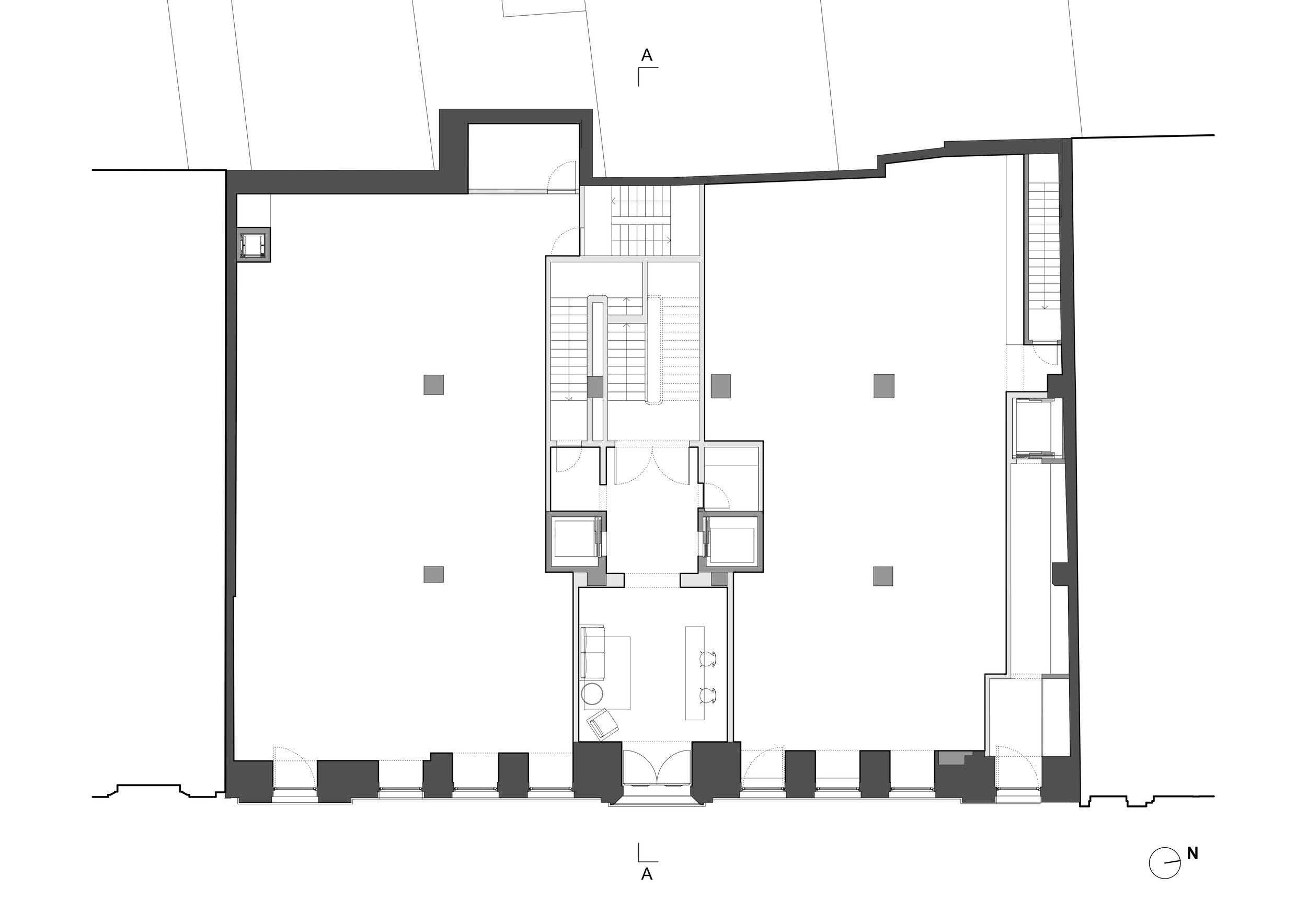
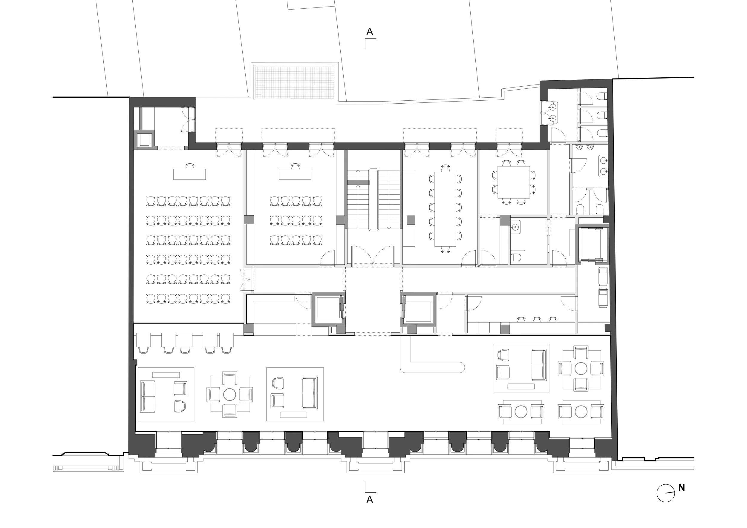
A volumetria do tardoz é reconfgurada por forma a responder ao programa - Hotel e comércio no piso 0 e -1.

 

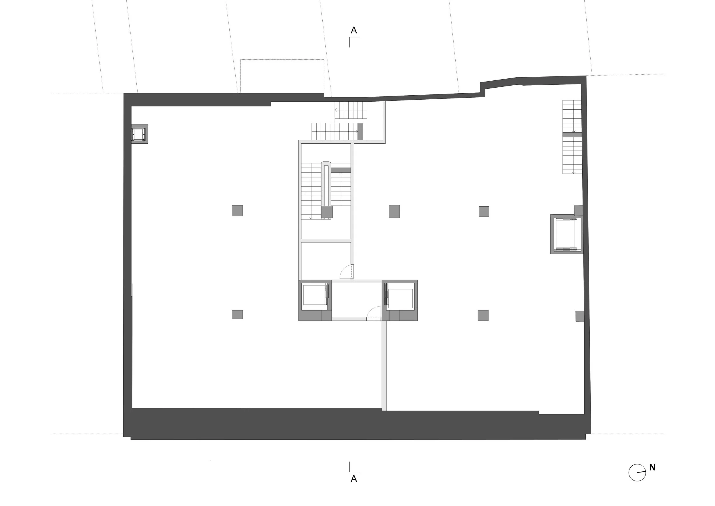
Piso -2

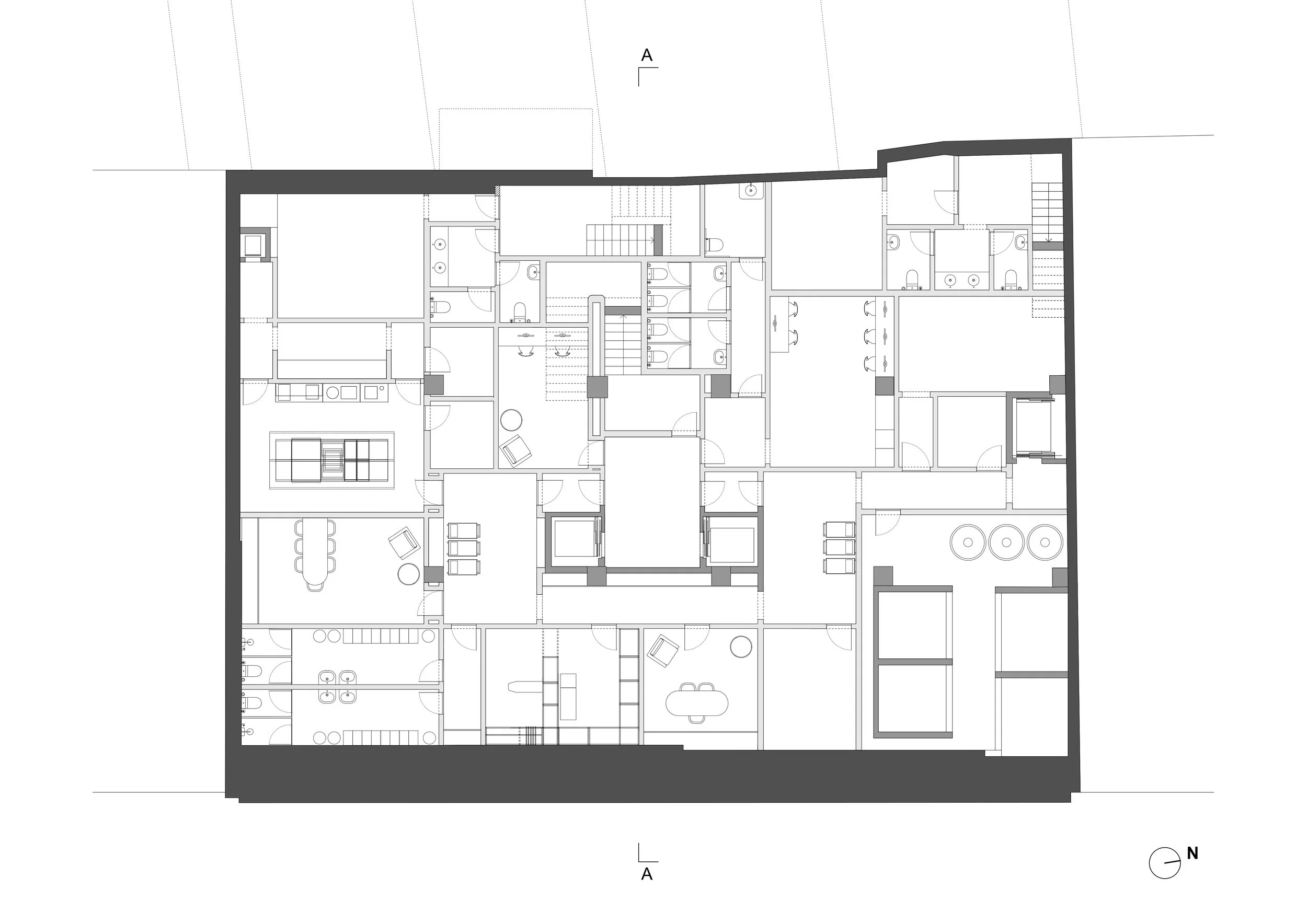
Piso -1

 

Piso 0

Piso 1

 

Piso 2/3/4/5

Piso 6

 

Alçado Tardoz

Corte A

 
 

Herzog & De Meuron - Rue des Suisses, Paris

 

Soletos de ardósia

 
 
 

A cofragem de betão em espinha a 45º do alçado tardoz remete para estereotomia dos soletos de ardósia, frequentemente utilizados como revestimento em coberturas ou pisos recuados.

 
 

LOCAL : Avenida dos Aliados , Porto, Portugal

ESTADO : Projecto de Licenciamento

DATA : 2016

CLIENTE : Pefero investimentos unipessoal lda

AUTOR : Luís Pereira Viana

COLABORADORES : Maria João Rito, Margarida Marques,

Adriana Rosado, Tiago Azevedo