CAPA.jpg

31 de Janeiro

HOTEL 31 DE JANEIRO

O projecto prevê a reabilitação de quatro edifícios adjacentes, na rua 31 de Janeiro, no Porto, para um edifício que será destinado a hotel com comércio no piso térreo. Devido ao grande desnivel de cota entre a rua mencionada e a rua Sá da Bandeira os edifícios têm três pisos,  abaixo do nível da rua, e quatro pisos acima.

O projecto prevê o aumento de mais um piso em todos os edifícios. Os quatro edifícios, atualmente autónomos, formam um claro conjunto construído na mesma altura pelos Clérigos do Mosteiro de São Bento da Vitória.

 
 

Alçado rua 31 de Janeiro, proposta

O novo piso é pensado à semelhança de sucessivos acrescentos que se foram fazendo ao longo da história em edifícios oitocentistas - com a mesma linguagem dos pisos inferiores, mas com uma depuração patente por exemplo nas guardas e caixilhos. Optamos por utilizar um novo material - o betão cofrado - em detrimento do granito nas varandas, orlas e cunhais (mantendo o mesmo desenho e proporções), de forma a enfatizar este novo testemunho do tempo.

Para além do piso acrescentado, redesenhamos de forma igualmente estilizada as trapeiras, a serem demolidas com a intervenção. Ao nível do R/C repomos a métrica dos vãos originais replicando em granito as molduras perdidas.

 
 
 

Alçado rua 31 de Janeiro, existente

 
 
 

Este conjunto com traseiras para o Teatro Sá da Bandeira define com este um espaço outrora público, da época medieval, que entendemos que seria uma maís valia para a cidade recuperar.

 

Planta de 1866

Anterior à construção da rua Sá da Bandeira, a viela da Netta, era um caminho de ligação entre a rua Formosa e a rua de Santo António (rua 31 de Janeiro).

Planta de 1892

A esta data, já estão construídos os quatro edifícios que integram a proposta, tendo sido feita a construção do primeiro lote (a nascente), por cima da escadaria pré-existente, de acesso à viela Netta.

 

Implantação existente

Actualmente, o espaço interior do quarteirão, entre os edifícios a reabilitar e as traseiras do Teatro, encontra-se obstruído e sonegado da cidade, fruto de sucessivas transformações ocorridas na malha urbana, principalmente desde o séc. XIX, e da justaposição de construções, feitas dentro e fora dos limites legais dos lotes, que o fecharam ao público.

Intervenção e relação com o Património

Pretende-se com esta operação de urbanização a reabilitação do espaço público, repôr a sua configuração original e as suas ligações, devolvendo-o assim à cidade e promovendo melhor usufruto público. A proposta contribui para um melhor funcionamento do conjunto edificado, Teatro Sá da Bandeira e rua de 31 de Janeiro, e também possibilita a permeabilidade e a reinserção de caminhos medievais agora desaparecidos, que tiveram outrora significado e utilidade, que interessa recuperar.

 
 

Acesso à viela da Netta, pela rua Sá da Bandeira

 
 
Imagem da proposta de reabilitação da viela da Netta, no lado da rua Sá da Bandeira

Imagem da proposta de reabilitação da viela da Netta, no lado da rua Sá da Bandeira

 
 

Imagem da proposta, desde a escadaria de acesso à viela da Netta, pela rua 31 de Janeiro

 
 

Piso -3

Piso -2

 

Piso -1

Piso 0

 

Piso 1/2/3

Piso 4

 
 

Alçado tardoz, existente

 
 
 
 

Alçado tardoz, proposto

 
 
 
 

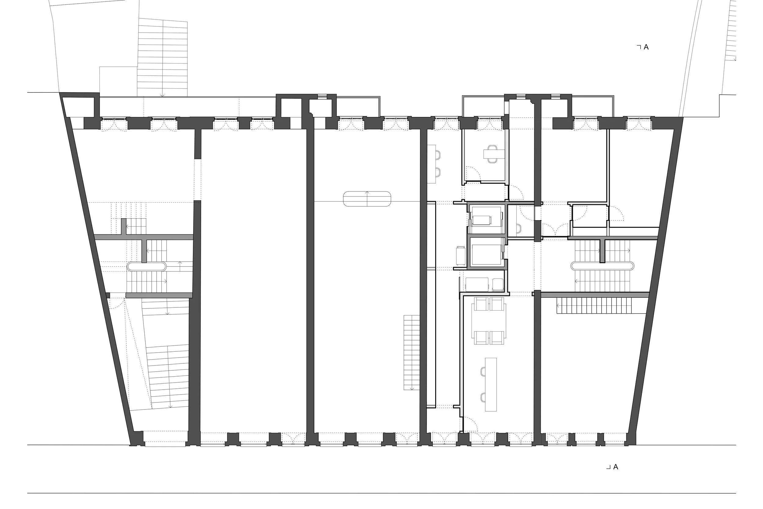
Corte A

 
 

LOCAL : Rua 31 de Janeiro , Porto, Portugal

ESTADO : Projecto de Licenciamento

DATA : 2016

CLIENTE : Pefero investimentos unipessoal lda

AUTOR : Luís Pereira Viana

COLABORADORES : Margarida Marques,

Adriana Rosado, Tiago Azevedo