fotomontagem alçado 7.jpg

PRAÇA DA PEDRA VERDE

PRAÇA DA PEDRA VERDE

Co-autor : Carlos Machado e Moura (MAVAA arquitectos)

O projeto de um pequeno edifício de habitação, com dois apartamentos, situado numa frente continua na zona ocidental da cidade do Porto, resulta das diferenças altimétricas e planimétricas dos edifícios contiguos.

O equilibrio compositivo teve especial relevância no projecto através de um incessante trabalho de desenho dos alçados.

O desenho volumétrico contrapõe o rigor de um rectângulo na fachada principal, a uma delicada curva, acentuada por uma escada em espiral, na fachada do tardoz.

A porta de entrada do edifício, tal como nas casas do Porto do século XIX ganha uma especial importância.

 
 
 
 
 
 
 
 
 
 
 

Corte A

 
 
 

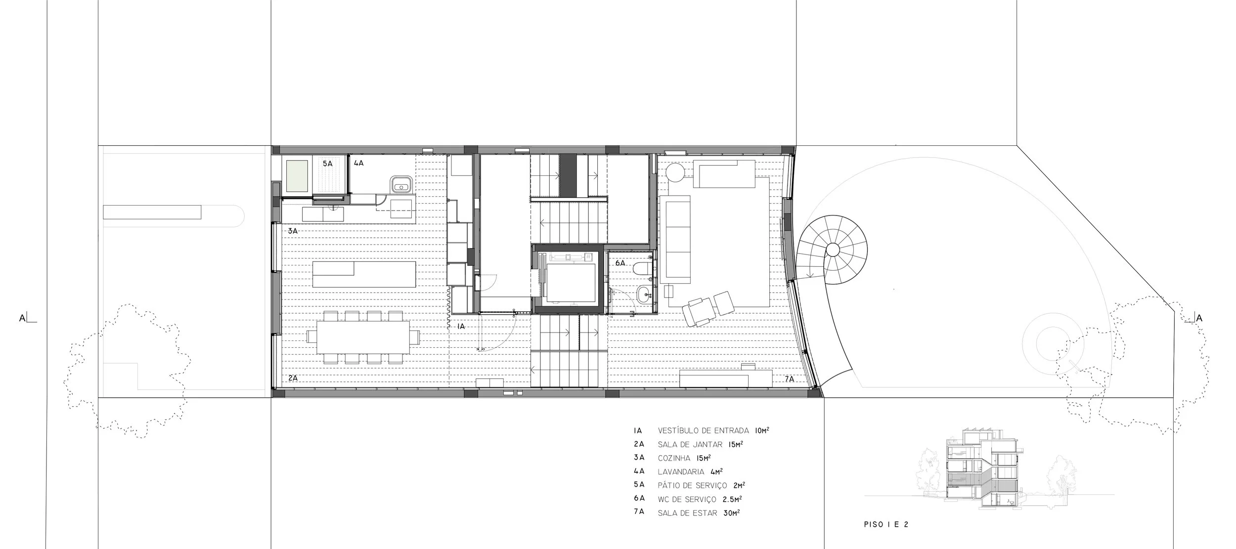
APARTAMENTO A - T3 JARDIM - Área Bruta 184 m2

 

Piso 0/-1 - Apartamento T3 Jardim

 
 
 
 
 

Piso 1/2 - Apartamento A

 
 
 
 
 
 
 
 
 
 
 

Piso 3 - Apartamento A

 
 
 

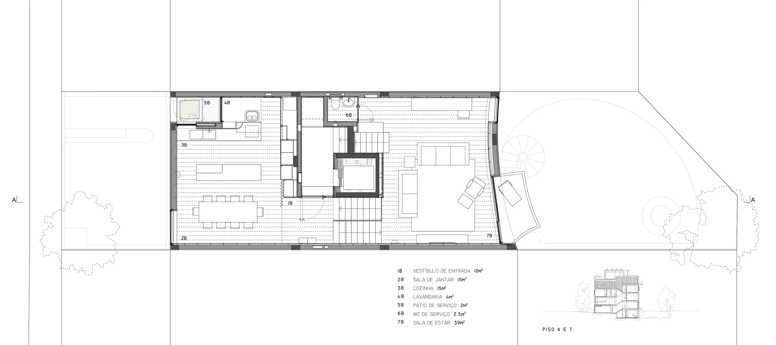
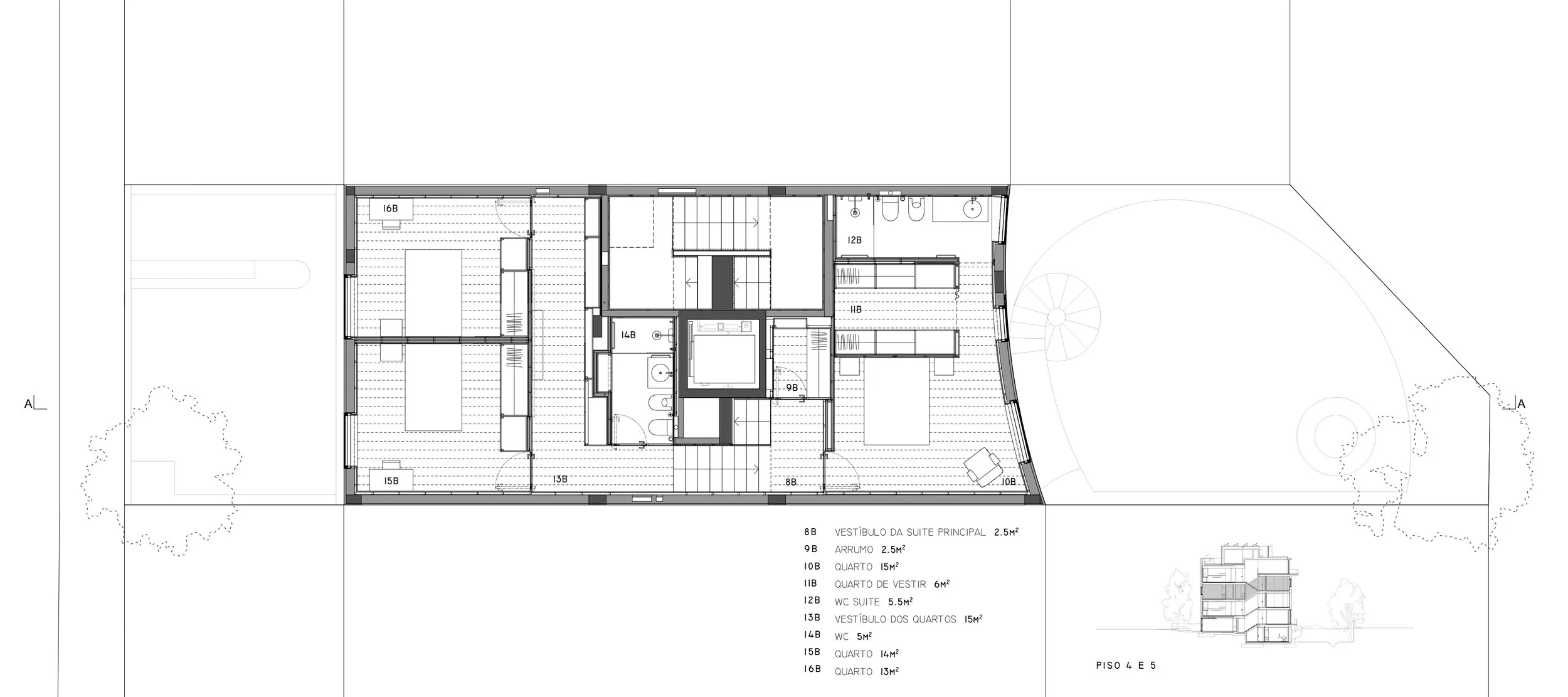
APARTAMENTO B - T4 TERRAÇO - Área Bruta 220 m2

 
 
 

Piso 6/7 - Apartamento B

 
 
 
 
 
 
 
 
 
 

Piso 8 - Apartamento B

 
 
 
 

Piso 4/5 - Apartamento B

 
 
 
 
 
 
 
 

SANAA - Moriyama House, Tokyo, Japão

 
SANAA - Escola de Management e Design, Zollverein, Alemanha

SANAA - Escola de Management e Design, Zollverein, Alemanha

 
 

LOCAL : Praça da Pedra Verde, Porto, Portugal

ESTADO : Projecto de Execução

DATA : 2011 -

CLIENTE : Luís Pereira Viana

AUTOR : MAVAA (Carlos Machado Moura + Luís Pereira Viana)

COLABORADORES : Margarida Marques, Adriana Rosado

ESPECIALIDADES : CIVI4 (estabilidade/inst. hidraúlicas);

FNT (inst. electricas); E3E (inst. mecânicas)